44 East Ave #100

44 East Ave #100

SALE OR LEASE OPPORTUNITY | TURN-KEY RESTAURANT SPACE AT 44 EAST AVE IN THE RAINEY STREET DISTRICT

7,050 SF Interior + 2,108 SF Exterior Available
price upon request
44 East Ave #100, Austin, TX 78701

Rare high end, turn-key 2nd generation restaurant with abundant indoor, outdoor and private seating capacity.

  • Benefit from a prime location in the Rainey Street District, offering direct access to one of Austin’s most
    popular nightlife + hospitality corridors, and a built-in customer base with residents of 44 East Ave.
  • Located at the 44 East Ave condominiums (44 East Ave #100, Austin, TX 78701) with direct access to
    the Hike & Bike trail
  • Over 7,500 residents within a 3 block radius
  • Over $7.5M invested in building out and furnishings in addition to the real estate purchase
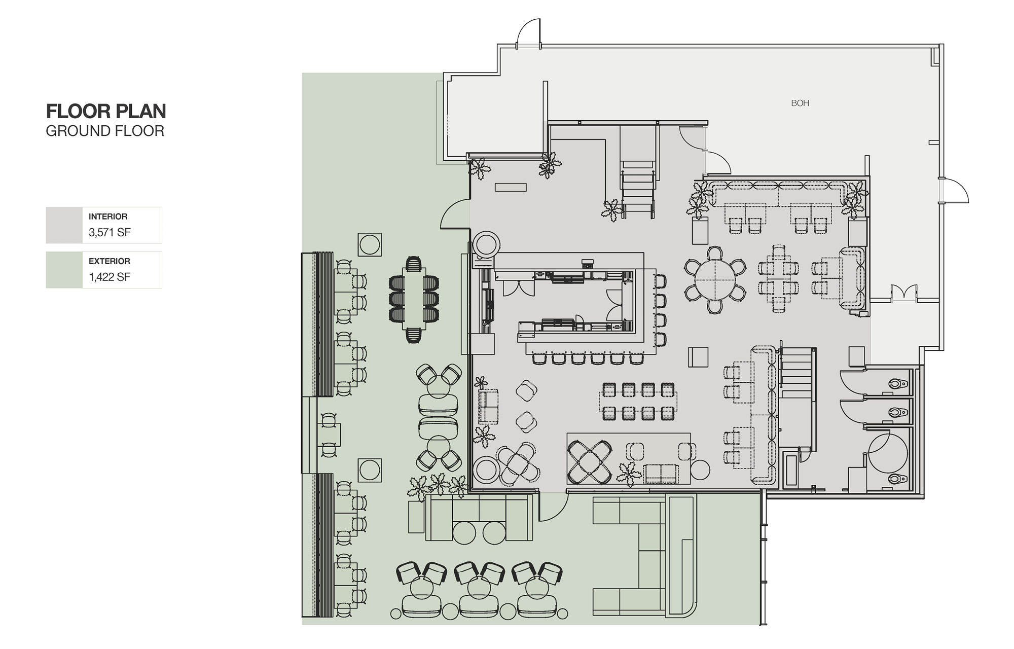
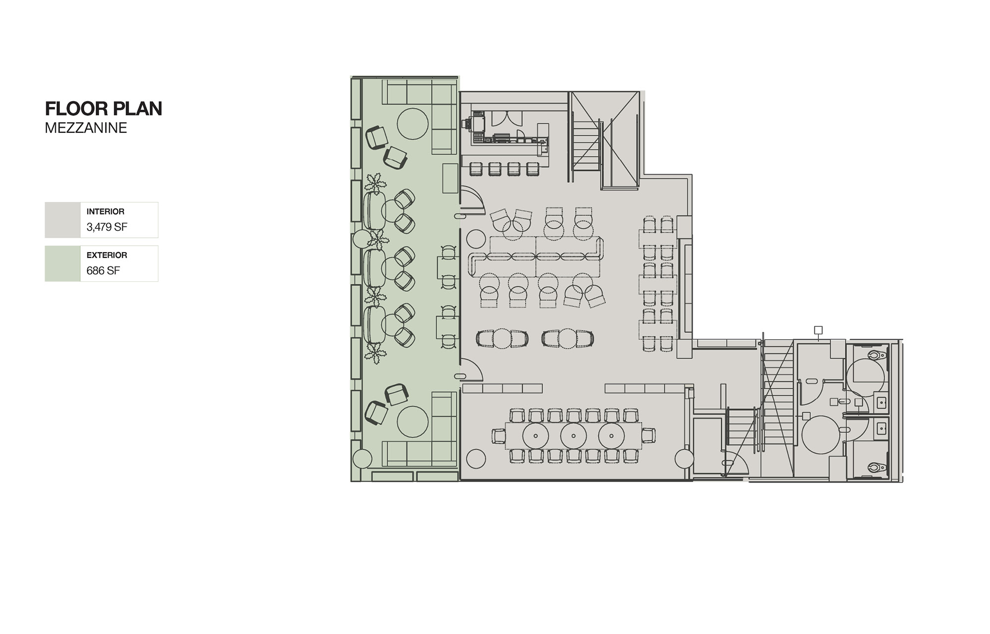
  • Square Footages:
    • Interior = 7,050 total SF
      • BOH portion: 2,875 SF
      • Ground Floor: 3,571 SF
      • Mezzanine: 3,479 SF
    • Exterior = 2,108 total SF
      • Ground Floor: 1,422 SF
      • Mezzanine: 686 SF
  • All FF&E can transfer
  • Liquor license available for a modest fee

the location

get in touch

Name(Required)
Email(Required)

Login to Urbanspace Realtors

Welcome back! Please enter your details.
New to Urbanspace Realtors? Sign up now.

Close